Přístavba chaty
Helena Sosnová
Praha
2025
Architektonická studie
Přístavba chaty
Helena Sosnová
Praha
2025
Architektonická studie
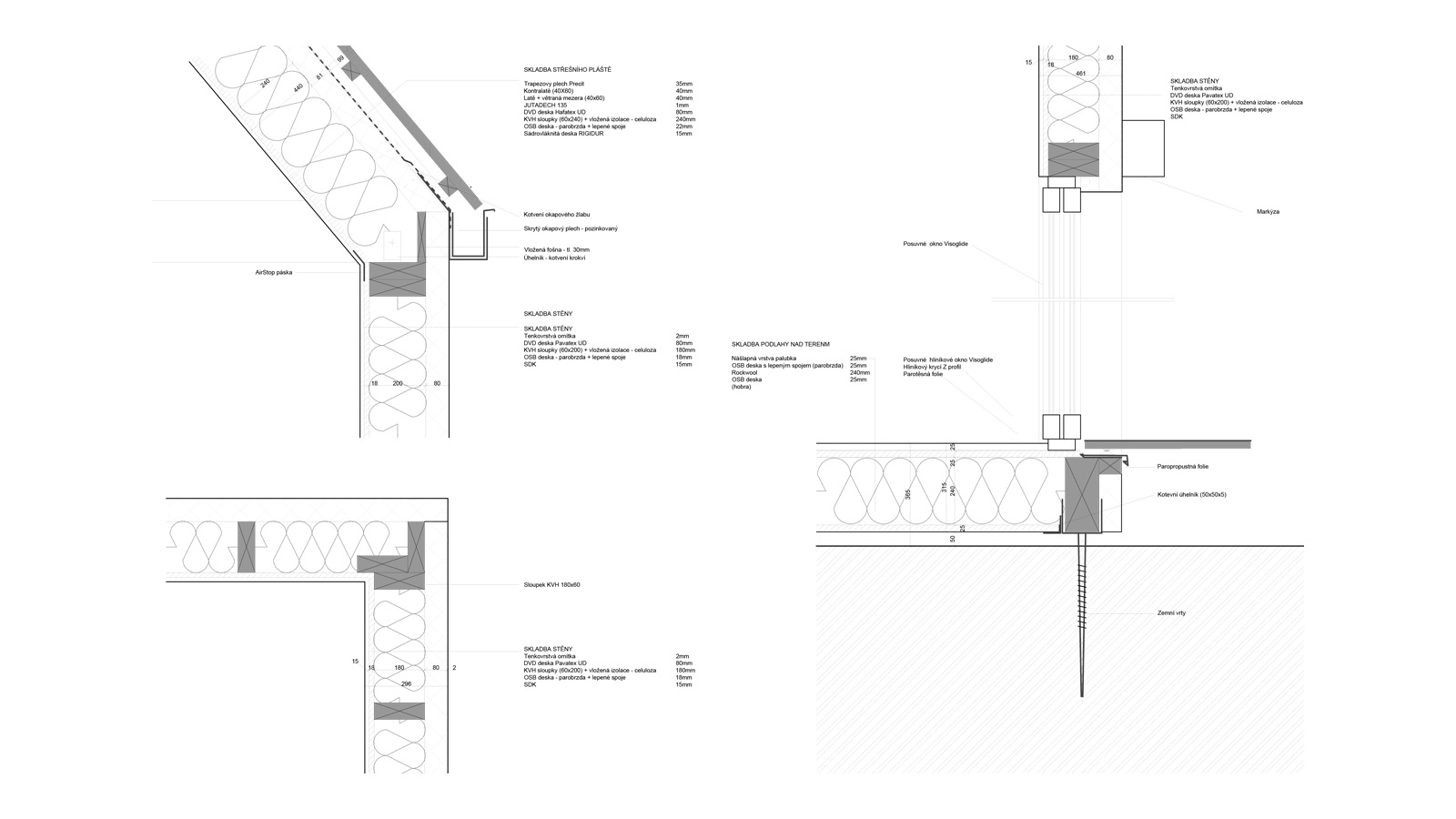
Mladá rodina si pořídila víkendovou chatku v jedné z Pražských zahrádkářských kolonií. Objekt z 50. let byl ve velmi špatném stavu i tak si majitelé přáli chatku zachovat. Okolní přístěnky byly odstraněny a byla ponechána jen hlavní hmota. Velký problém spočíval v umístění zahrádkářské kolonie, která vznikla na bývalé skládce. Vzhledem k problematickému podloží byla zvolena lehká dřevostavba založena pouze bodově. Celkově byla snaha o co největší finanční úsporu, a tak byly zvoleny typové prvky, kterým byla přístavba podřízena. Dostavba byla navržena jako jeden otevřený prostor, který je možné přepažit sítí v úrovni stropu. Bylo tak docíleno zvětšení odpočinkových ploch při zachování pocitu velkorysosti. V původní části objektu byly navrženy ložnice s možností minimální koupelny.