Foyer kina Humpolec (Helena Sosnová pro Atelier Bod architekti)
Helena Sosnová, Vojtěch Sosna
Humpolec
2025
Architektonická studie
Foyer kina Humpolec (Helena Sosnová pro Atelier Bod architekti)
Helena Sosnová, Vojtěch Sosna
Humpolec
2025
Architektonická studie
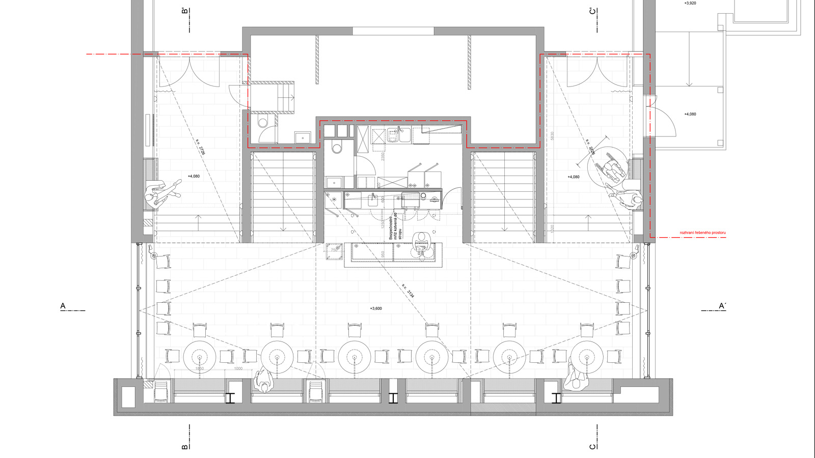
Návrh vrací foyer do původní podoby a odstraňuje nánosy starších úprav, které prostor tříštily. Přesunem „Hliníkária“- výstavy do jiné části budovy se foyer může stát plnohodnotným reprezentativním vstupem do kina. Prostor je zjednodušen, sjednocen a zpřehledněn. Klíčovou změnou je srovnání podhledů a zazdění nefunkčního okna, které nenaruší denní osvětlení díky dvojici velkých protilehlých oken. Tím foyer získává čistší a kultivovanější výraz. Nový bar nabízí kapacitu pro 42 návštěvníků. Dominantou je stěna se šesti nikami, které slouží k sezení i jako flexibilní plocha pro filmové plakáty. Důraz je kladen na akustiku a kvalitní světlo. Akustické materiály, lineární a nepřímá LED světla podporují atmosféru kina a zvýrazňují struktury použitých povrchů. Celek doplňují retro prvky odkazující na dobu vzniku budovy. Materiálové řešení kombinuje tmavé plochy, barevné akcenty a světlou kamennou podlahu, která je zachována jako hodnotný a určující prvek celého prostoru.