Rekonstrukce panelového bytu
Helena Sosnová
Praha
2018
Architektonická studie
Rekonstrukce panelového bytu
Helena Sosnová
Praha
2018
Architektonická studie
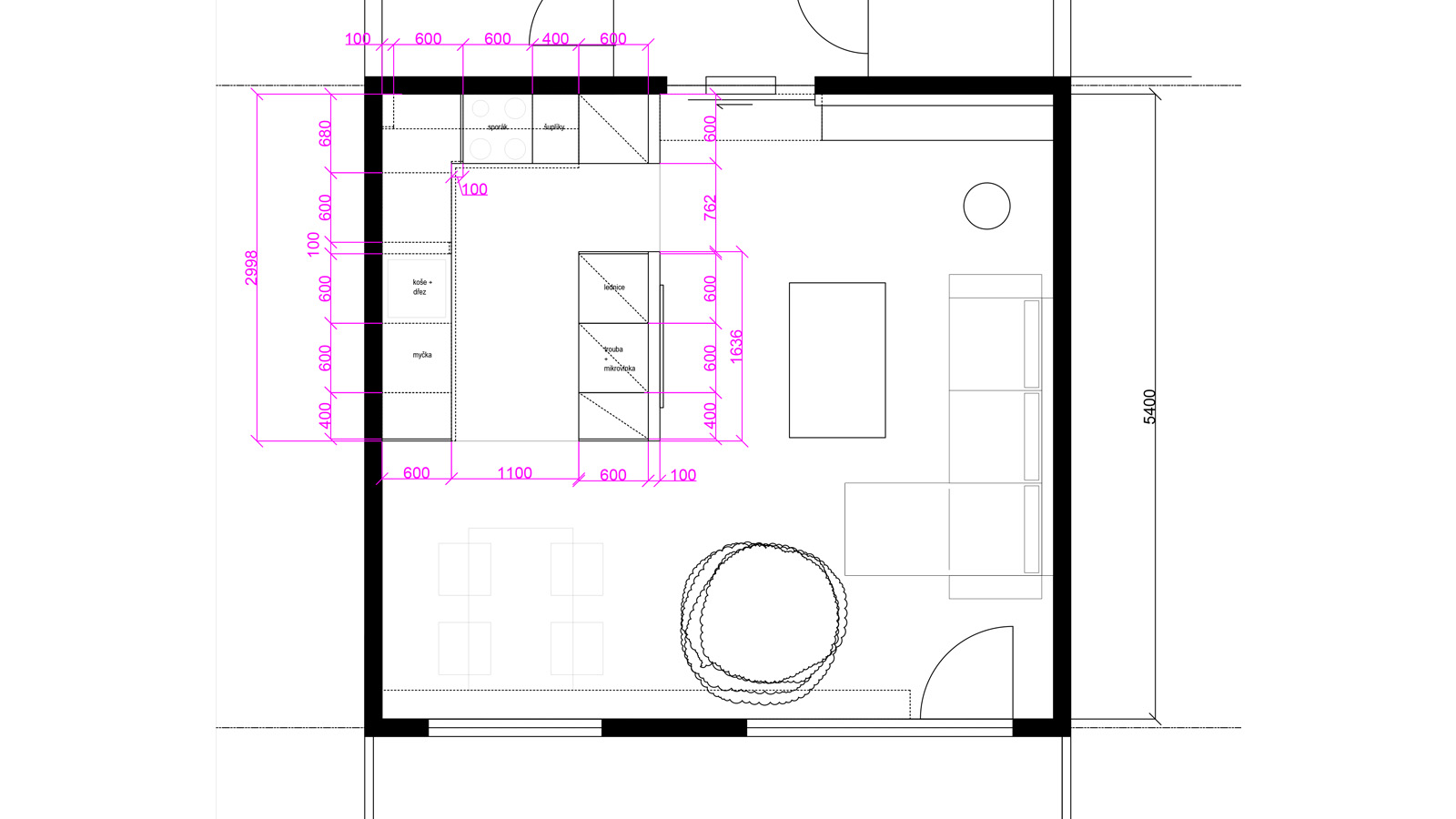
40 let starý panelákový byt 3+1 na okraji Prahy vyžadoval pro další používání částečnou modernizaci s důrazem na praktičnost a snadnou údržbu. Zadáním bylo propojení obývací prostory s kuchyní s možností částečného oddělení. Toho bylo dosaženo výměnou dvou standardních vstupů za jeden větší, řešený zašupovacími dveřmi a částečným odstraněním betonového panelu. Samotná kuchyň byla navržena v minimalistickém stylu s podlahou odolnou proti poškození z běžné činnosti. V obývací části je navržena knihovna přes celou stěnu. Na podlahovou krytinu byla doporučena plovoucí dřevěná podlaha.